Capannone in vendita

Bari, Via Conte Giusso - Mungivacca
€ 140.000
Prezzo aggiornato
2 locali 2 locali
224 Mq 224 Mq
1 bagno 1 bagno

Capannone in vendita

Bari, Via Conte Giusso - Mungivacca

Descrizione annuncio

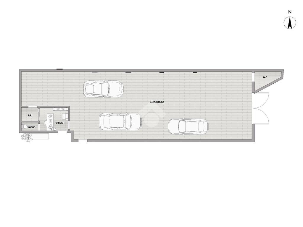
In zona strategica e di recente costruzione, proponiamo in vendita ampio capannone ad uso laboratorio per arti e mestieri di 224 mq, attualmente locato con ottima rendita, ideale per chi è alla ricerca di un investimento sicuro e immediatamente produttivo.

L’immobile si sviluppa in un grande ambiente operativo, completo di ufficio e servizio igienico, con altezza interna di 4,10 mt, caratteristica che lo rende estremamente versatile e adatto a molteplici attività artigianali e professionali.

La posizione garantisce facilità di accesso e ottima visibilità, inserita in un contesto moderno e funzionale.

Punti di forza:

Superficie: 224 mq

Immobile già locato – alta redditività

Altezza interna 4,10 mt

Zona strategica

Costruzione recente

Ufficio e servizio igienico

Soluzione ideale per investitori o per chi desidera un immobile produttivo in una delle aree più richieste di Bari.

Non lasciarti sfuggire questa straordinaria opportunità. Contattaci oggi stesso per organizzare una visita allo 080.504.62.32 wapp 392.130.47.47

Se hai anche intenzione di vendere il tuo immobile, ti invitiamo ad affidarti al nostro team dinamico, con 25 anni di esperienza nel mercato immobiliare. Offriamo consulenze gratuite per valutare il tuo immobile e fornirti supporto durante tutto il processo di vendita.

Non esitare a contattarci per ulteriori informazioni o per prenotare una consulenza gratuita. Saremo lieti di assisterti e offrirti il nostro know-how per una vendita rapida ed efficace del tuo immobile.

Mostra tutto

Nelle vicinanze

Trasporto pubblico Trasporto pubblico
Mungivacca
Mungivacca
1,2 Km
stazione di Bari Parco Sud
stazione di Bari Parco Sud
2,7 Km
Conte Giusso-Bovio
Conte Giusso-Bovio
120 m
Conte Giusso-Fanelli
Conte Giusso-Fanelli
200 m
Marconi
Marconi
2,7 Km
Ricariche auto elettriche Ricariche auto elettriche
IKEA Bari | EnelX Fast
980 m
Eneldrive Petroni
1,6 Km
Campus Universitario Politecnico Bari | ENELX FAST
1,8 Km
Eneldrive Politecnico Di Bari
2,1 Km
Eneldrive Centro Commerciale Mongolfiera Japigia
2,5 Km
Scuole Scuole
Istituto Tecnico Professionale “Raffaele Gorjux”
350 m
Scuole
390 m
Liceo scientifico Enrico Fermi
430 m
Scuola media Santo Mauro
940 m
Scuola media "Michelangelo"
1,1 Km
Farmacia Farmacia
Valori
840 m
Farmacia Einaudi
1,1 Km
Valentini
1,2 Km
D'Amico
1,4 Km
Solazzo
1,5 Km
Ospedali Ospedali
Mater Dei
580 m
Ospedale Pediatrico Giovanni XXIII
700 m
Pronto Soccorso Ospedale Pediatrico Giovanni XXIII
740 m
Casa di cura Santa Rita
1,8 Km
Clinica Santa Maria
2,7 Km
Supermercati Supermercati
Supermercati
800 m
Alter Discount
1,2 Km
Simply
1,3 Km
Coop
1,4 Km
Supermercato
1,4 Km
Negozi Negozi
Negozi
1,4 Km
Felice
1,6 Km
Panificio Felice
1,8 Km
Panificio Michele
1,9 Km
Barbianco
2,1 Km
Bar Bar
Bar
350 m
Mulata
930 m
TNT Tap'n'Table
1,2 Km
Ladisa ICE
1,3 Km
Fix It Radio
1,4 Km
Ristoranti Ristoranti
Ristoranti
410 m
La Vecchia Data
730 m
Cortigiano
790 m
Pizzeria Il Bugigattolo
1,1 Km
La 'Mbriana
1,3 Km
Mostra tutto

Caratteristiche

Rif.:
61162858
Piano:
Terra
Posti auto:
1
Condizionamento:
Autonomo
Ascensore:
No
Riscaldamento:
Assente
Mostra tutto
Prezzo Prezzo
€ 140.000
Rata mutuo Rata mutuo
€ 665 / mese
Spese annue Spese annue
€ 0
Proponi il tuo prezzoProponi il tuo prezzo

Altre caratteristiche

Descrizione dei locali
Bagno Con Finestra

Classe Energetica

G
G
G
G
G
G
G
G
G
EP globale non rinnovabile:
393.32 kW h/m² anno
EP invernale del fabbricato:
EP estiva del fabbricato:
Anno di costruzione:
2015
Riscaldamento:
Assente

Prezzo ridotto di €1 (20%%)

Ti interessa visionare l'immobile?

Fissa un appuntamento  Fissa un appuntamento

Richiedi informazioni

Clicca su Leggi per aprire l'informativa
* Questi campi sono obbligatori

Calcola il tuo mutuo

Semplice e senza impegno
Anticipo

( % )
Mutuo

( % )

pochi semplici passi

inserisci i tuoi dati
Questionario completato
Grazie per aver richiesto un appuntamento senza impegno con un nostro Consulente del Credito e Assicurativo.

Hai inserito correttamente tutti i dati necessari e a breve riceverai una e-mail con un link da convalidare per inviare i tuoi dati.
Affiliato
Studio Disfida Sas
Via G. Petroni, 92 70124 Bari (BA)

Il nostro staff


  • Nicoletta Mariano
    Coordinatrice

  • Francesco Allegretti
    Affiliato

  • Vincent Battista
    Collaboratore

  • Giorgia Gatto
    Collaboratrice
Via G. Petroni, 92 70124 Bari (BA)
Zona: Bari-Carrassi-Poggiofranco-Picone
Mostra su mappa
Orari: Dal lunedì al venerdì dalle 9:00 alle 13:00 e dalle 16:00 alle 20:30 il sabato dalle 9:00 alle 13:00
Affiliato
Studio Disfida Sas
Via G. Petroni, 92 70124 Bari (BA)

2026 Tecnocasa Franchising S.p.A. - P. IVA 08365160152 - Via Monte Bianco 60/A 20089 Rozzano (MI). Ogni agenzia ha un proprio titolare ed è autonoma. Privacy policy | Policy utilizzo | Cookie policy